
ЖК Residence Hall Шаболовский — жилой комплекс в Москве (ЦАО). Это обзор без рекламных легенд: что важно проверить по месту, планировкам и бюджету, прежде чем принимать решение.
Место в городе
В Москве на ощущение дома сильно влияет шум: магистрали, развязки, активные улицы. Даже при одинаковой удалённости от метро реальная «тишина» может отличаться в разы — это стоит оценить заранее.
Локацию лучше проверять не по «минутам до метро», а по сценариям: утро, вечер и выходные. Если хотя бы два из трёх маршрутов проходят без стресса, место обычно воспринимается комфортно.
Хорошая локация — это ещё и пешие привычки: где купить продукты, куда выйти пройтись, насколько безопасно и удобно вечером.

Как устроен дом
Коммерция на первых этажах может быть сильным плюсом (кофе, сервисы, доставка), но важно, чтобы это не превращалось в источник шума и хаоса у входов.
Дворовая среда формирует «ощущение дома». Когда есть тихие зоны, нормальные маршруты и понятные правила для автомобилей, комплекс воспринимается спокойнее.
Фасады — это первое впечатление, но жить приходится в подъезде и во дворе. Поэтому стоит смотреть на практику: входные группы, освещение, лифты, навигацию и пешеходные маршруты без конфликтов с машинами.
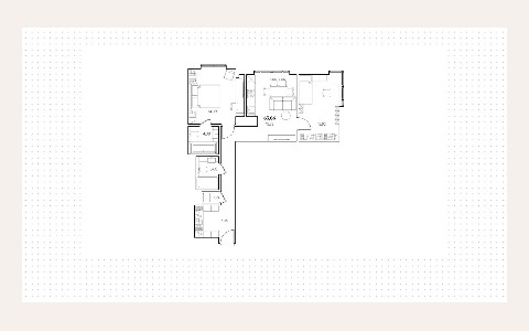
Планировочные решения
Гибкость планировки важна, если есть шанс смены сценария: работа из дома, ребёнок, отдельная спальня. Там, где можно зонировать без сложного ремонта, вариантов больше.
Планировку удобно проверять «мебельным тестом»: где встанет шкаф, как открываются двери, не конфликтуют ли проходы. На схеме всё выглядит гладко, но в жизни сантиметры решают.
Проверь, где будут инженерные стояки и «мокрые зоны»: это влияет на варианты перепланировки и на удобство без переделок.


Что рядом по делу
Сильные проекты выигрывают там, где быт не требует постоянных поездок: двор, первые этажи и маршруты складываются в понятную ежедневную логику.
Для семей решают школы и сады, но взрослым тоже важны «простые» вещи: нормальный продуктовый, аптека, спорт. Когда всё это рядом, качество жизни растёт быстро.
Инфраструктура — это не список на лендинге, а доступность. Быстрый тест: где аптека, продуктовый, пункт выдачи, спорт и прогулка, и сколько времени займёт дорога туда без машины.
Отзывы и реальность
У любого проекта есть критика. Вопрос в том, насколько минусы критичны для твоего режима жизни: кому-то важна тишина, кому-то — скорость до центра, кому-то — двор и дети.
По отзывам удобно искать не «оценку», а конкретику: что пишут про шум, парковку, лифты, сроки и качество общих зон.
Сильнее всего ощущается «послепродажный» опыт: как решаются заявки, как работает управляющая компания, что с чистотой и мелкими поломками. Это то, что встречает каждый день.
Полезно смотреть не на обещания, а на быт: как устроен двор, как решаются заявки, что происходит в часы пик и насколько комфортно возвращаться домой вечером.
Чтобы оценить риски по шуму, парковке и сервису, посмотри, что обсуждают про ЖК RestART: повторяемость замечаний обычно говорит громче эмоций.
Попробуй представить себя здесь через год: что будет радовать каждый день, а что начнёт раздражать. Если ответ получается честным, выбор обычно становится проще — даже среди похожих проектов.
Нередко дороже оказывается не покупка, а жизнь после неё: время в дороге, парковка, шум, сервис. Поэтому «чуть дороже, но удобнее» иногда выигрывает в долгую.
Сравнивать полезно и по полной стоимости владения: парковка, коммунальные, возможные доп.платежи за сервис — это быстро меняет картинку.
Важная мелочь: как устроены проходы зимой и в дождь, где будут коляски и велосипеды, насколько логична навигация внутри.
Если работа или учёба часто в разных концах города, полезно заранее прикинуть альтернативные маршруты и транспорт, когда дороги стоят.
Если бюджет ограничен, полезно заранее решить, чем ты готов пожертвовать: метражом, удалённостью, видом или плотностью. Эта честность экономит время и снижает риск разочарований.
Цены корректнее сравнивать не по «случайным объявлениям», а по набору параметров: окружение, класс, стадия готовности, качество общих зон и логистика. Одинаковая цена за метр иногда означает разные компромиссы.
Если часто ездить по городу, важны не только крупные магистрали, но и «последние 500 метров»: выезд из двора, развороты, местные пробки и парковка.
Если хранение не продумано, часть площади уйдёт на шкафы. Когда в проекте есть ниши и гардеробные, жить проще и визуально «чище».
Полезно оценивать, как дом «садится» в окружение: инсоляция, виды, расстояния до соседних корпусов. Эти вещи потом сложно исправить ремонтом.
Сложившаяся среда — плюс, но у неё есть цена: плотность, трафик и меньше «воздуха». Полезно честно решить, что важнее — динамика рядом или спокойствие.
