
ЖК Колымажный 10 — жилой комплекс в Москве (ЦАО). Ниже — обзор по делу: где могут быть компромиссы, что проверять в планировке и как здраво сравнивать цену.
Архитектурная логика
Важная мелочь: как устроены проходы зимой и в дождь, где будут коляски и велосипеды, насколько логична навигация внутри.
Дворовая среда формирует «ощущение дома». Когда есть тихие зоны, нормальные маршруты и понятные правила для автомобилей, комплекс воспринимается спокойнее.
Фасады — это первое впечатление, но жить приходится в подъезде и во дворе. Поэтому стоит смотреть на практику: входные группы, освещение, лифты, навигацию и пешеходные маршруты без конфликтов с машинами.
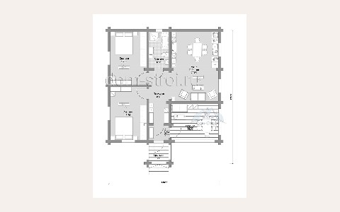
Планировка: важные мелочи
Проверь, где будут инженерные стояки и «мокрые зоны»: это влияет на варианты перепланировки и на удобство без переделок.
Планировку удобно проверять «мебельным тестом»: где встанет шкаф, как открываются двери, не конфликтуют ли проходы. На схеме всё выглядит гладко, но в жизни сантиметры решают.
Если хранение не продумано, часть площади уйдёт на шкафы. Когда в проекте есть ниши и гардеробные, жить проще и визуально «чище».





Для сравнения по сценариям «жить и работать» подходит ЖК Лазурный блюз: разные решения по зонированию чувствуются сразу.
Локация без иллюзий
Если часто ездить по городу, важны не только крупные магистрали, но и «последние 500 метров»: выезд из двора, развороты, местные пробки и парковка.
Локацию лучше проверять не по «минутам до метро», а по сценариям: утро, вечер и выходные. Если хотя бы два из трёх маршрутов проходят без стресса, место обычно воспринимается комфортно.
Сложившаяся среда — плюс, но у неё есть цена: плотность, трафик и меньше «воздуха». Полезно честно решить, что важнее — динамика рядом или спокойствие.

Цена за метр и нюансы
Сравнивать полезно и по полной стоимости владения: парковка, коммунальные, возможные доп.платежи за сервис — это быстро меняет картинку.
Нередко дороже оказывается не покупка, а жизнь после неё: время в дороге, парковка, шум, сервис. Поэтому «чуть дороже, но удобнее» иногда выигрывает в долгую.
| Формат | Ориентир, от ₽/м² |
|---|---|
| 1-комнатная | 881 610 |
| 2-комнатная | 839 629 |
| 3-комнатная | 797 647 |
Инфраструктура рядом
Для семей решают школы и сады, но взрослым тоже важны «простые» вещи: нормальный продуктовый, аптека, спорт. Когда всё это рядом, качество жизни растёт быстро.
Если работа или учёба часто в разных концах города, полезно заранее прикинуть альтернативные маршруты и транспорт, когда дороги стоят.
Инфраструктура — это не список на лендинге, а доступность. Быстрый тест: где аптека, продуктовый, пункт выдачи, спорт и прогулка, и сколько времени займёт дорога туда без машины.
О чём спорят чаще всего
Сильнее всего ощущается «послепродажный» опыт: как решаются заявки, как работает управляющая компания, что с чистотой и мелкими поломками. Это то, что встречает каждый день.
Отзывы полезны не эмоциями, а повторяемостью. Если разные люди независимо отмечают одно и то же (парковка, шум, лифты, сервис), это сигнал проверить именно этот пункт.
У любого проекта есть критика. Вопрос в том, насколько минусы критичны для твоего режима жизни: кому-то важна тишина, кому-то — скорость до центра, кому-то — двор и дети.
Самые полезные отзывы — с конкретикой. Если один и тот же пункт повторяется у разных людей (шум, парковка, лифты, сервис), это повод проверить именно его.
Попробуй коротко ответить себе: что здесь будет плюсом каждый день, а что — раздражителем. Когда это сформулировано, решение обычно становится заметно проще.
Хорошая локация — это ещё и пешие привычки: где купить продукты, куда выйти пройтись, насколько безопасно и удобно вечером.
Цены корректнее сравнивать не по «случайным объявлениям», а по набору параметров: окружение, класс, стадия готовности, качество общих зон и логистика. Одинаковая цена за метр иногда означает разные компромиссы.
Коммерция на первых этажах может быть сильным плюсом (кофе, сервисы, доставка), но важно, чтобы это не превращалось в источник шума и хаоса у входов.
Гибкость планировки важна, если есть шанс смены сценария: работа из дома, ребёнок, отдельная спальня. Там, где можно зонировать без сложного ремонта, вариантов больше.
