
ЖК Дворянское Гнездо — жилой комплекс в Москве (ЦАО). Ниже — обзор без рекламных штампов: на что смотреть в локации, как сравнивать цены и какие детали потом влияют на комфорт.
Планировка: важные мелочи
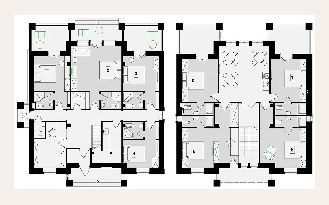
Если хранение не продумано, часть площади уйдёт на шкафы. Когда в проекте есть ниши и гардеробные, жить проще и визуально «чище».
Проверь, где будут инженерные стояки и «мокрые зоны»: это влияет на варианты перепланировки и на удобство без переделок.
Гибкость планировки важна, если есть шанс смены сценария: работа из дома, ребёнок, отдельная спальня. Там, где можно зонировать без сложного ремонта, вариантов больше.





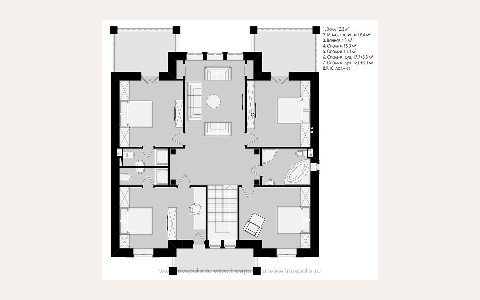
По логике планировок можно сопоставить с ЖК Дом-яйцо: иногда выигрыш даёт не метраж, а зонирование и хранение.
Сервисы и повседневный быт
Инфраструктура — это не список на лендинге, а доступность. Быстрый тест: где аптека, продуктовый, пункт выдачи, спорт и прогулка, и сколько времени займёт дорога туда без машины.
Сильные проекты выигрывают там, где быт не требует постоянных поездок: двор, первые этажи и маршруты складываются в понятную ежедневную логику.
Для семей решают школы и сады, но взрослым тоже важны «простые» вещи: нормальный продуктовый, аптека, спорт. Когда всё это рядом, качество жизни растёт быстро.
То, что видно в деталях
Важная мелочь: как устроены проходы зимой и в дождь, где будут коляски и велосипеды, насколько логична навигация внутри.
Коммерция на первых этажах может быть сильным плюсом (кофе, сервисы, доставка), но важно, чтобы это не превращалось в источник шума и хаоса у входов.
Полезно оценивать, как дом «садится» в окружение: инсоляция, виды, расстояния до соседних корпусов. Эти вещи потом сложно исправить ремонтом.
Цены: как сравнивать
Если бюджет ограничен, полезно заранее решить, чем ты готов пожертвовать: метражом, удалённостью, видом или плотностью. Эта честность экономит время и снижает риск разочарований.
Цены корректнее сравнивать не по «случайным объявлениям», а по набору параметров: окружение, класс, стадия готовности, качество общих зон и логистика. Одинаковая цена за метр иногда означает разные компромиссы.
| Формат | Ориентир, от ₽/м² |
|---|---|
| 1-комнатная | 779 698 |
| 2-комнатная | 742 570 |
| 3-комнатная | 705 441 |
Место в городе
Хорошая локация — это ещё и пешие привычки: где купить продукты, куда выйти пройтись, насколько безопасно и удобно вечером.
В Москве на ощущение дома сильно влияет шум: магистрали, развязки, активные улицы. Даже при одинаковой удалённости от метро реальная «тишина» может отличаться в разы — это стоит оценить заранее.
Если часто ездить по городу, важны не только крупные магистрали, но и «последние 500 метров»: выезд из двора, развороты, местные пробки и парковка.

Практика по отзывам
По отзывам удобно искать не «оценку», а конкретику: что пишут про шум, парковку, лифты, сроки и качество общих зон.
Сильнее всего ощущается «послепродажный» опыт: как решаются заявки, как работает управляющая компания, что с чистотой и мелкими поломками. Это то, что встречает каждый день.
Отзывы полезны не эмоциями, а повторяемостью. Если разные люди независимо отмечают одно и то же (парковка, шум, лифты, сервис), это сигнал проверить именно этот пункт.
Полезный приём: выписать 3–4 повторяющиеся темы из отзывов и проверить их лично — так выбор становится спокойнее и честнее.
В конце полезно задать себе один вопрос: что будет раздражать чаще всего — дорога, плотность, парковка или шум? Ответ обычно важнее любого красивого описания.
Дворовая среда формирует «ощущение дома». Когда есть тихие зоны, нормальные маршруты и понятные правила для автомобилей, комплекс воспринимается спокойнее.
Если работа или учёба часто в разных концах города, полезно заранее прикинуть альтернативные маршруты и транспорт, когда дороги стоят.
Локацию лучше проверять не по «минутам до метро», а по сценариям: утро, вечер и выходные. Если хотя бы два из трёх маршрутов проходят без стресса, место обычно воспринимается комфортно.
Фасады — это первое впечатление, но жить приходится в подъезде и во дворе. Поэтому стоит смотреть на практику: входные группы, освещение, лифты, навигацию и пешеходные маршруты без конфликтов с машинами.
