
ЖК Брюсов 19 — жилой комплекс в Москве (ЦАО). Ниже — разбор по делу: где могут быть компромиссы, что смотреть в планировке и как подходить к цене без иллюзий.
Как устроен дом
Дворовая среда формирует «ощущение дома». Когда есть тихие зоны, нормальные маршруты и понятные правила для автомобилей, комплекс воспринимается спокойнее.
Важная мелочь: как устроены проходы зимой и в дождь, где будут коляски и велосипеды, насколько логична навигация внутри.
Полезно оценивать, как дом «садится» в окружение: инсоляция, виды, расстояния до соседних корпусов. Эти вещи потом сложно исправить ремонтом.
Район и повседневные привычки
В Москве на ощущение дома сильно влияет шум: магистрали, развязки, активные улицы. Даже при одинаковой удалённости от метро реальная «тишина» может отличаться в разы — это стоит оценить заранее.
Если часто ездить по городу, важны не только крупные магистрали, но и «последние 500 метров»: выезд из двора, развороты, местные пробки и парковка.
Сложившаяся среда — плюс, но у неё есть цена: плотность, трафик и меньше «воздуха». Полезно честно решить, что важнее — динамика рядом или спокойствие.

Что пишут жители
По отзывам удобно искать не «оценку», а конкретику: что пишут про шум, парковку, лифты, сроки и качество общих зон.
У любого проекта есть критика. Вопрос в том, насколько минусы критичны для твоего режима жизни: кому-то важна тишина, кому-то — скорость до центра, кому-то — двор и дети.
Отзывы полезны не эмоциями, а повторяемостью. Если разные люди независимо отмечают одно и то же (парковка, шум, лифты, сервис), это сигнал проверить именно этот пункт.
Если отбросить эмоции, люди чаще всего обсуждают бытовые детали — подъезды, лифты, парковку и шум. Это хороший список для личной проверки.
Стоимость и позиционирование
Если бюджет ограничен, полезно заранее решить, чем ты готов пожертвовать: метражом, удалённостью, видом или плотностью. Эта честность экономит время и снижает риск разочарований.
Нередко дороже оказывается не покупка, а жизнь после неё: время в дороге, парковка, шум, сервис. Поэтому «чуть дороже, но удобнее» иногда выигрывает в долгую.
| Формат | Ориентир, от ₽/м² |
|---|---|
| 1-комнатная | 802 280 |
| 2-комнатная | 764 077 |
| 3-комнатная | 725 873 |
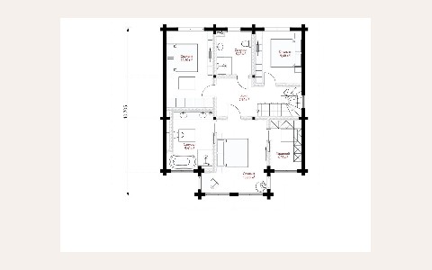
Как устроены квартиры
Гибкость планировки важна, если есть шанс смены сценария: работа из дома, ребёнок, отдельная спальня. Там, где можно зонировать без сложного ремонта, вариантов больше.
Если хранение не продумано, часть площади уйдёт на шкафы. Когда в проекте есть ниши и гардеробные, жить проще и визуально «чище».
Планировку удобно проверять «мебельным тестом»: где встанет шкаф, как открываются двери, не конфликтуют ли проходы. На схеме всё выглядит гладко, но в жизни сантиметры решают.




Если выбираешь между похожими площадями, сравни с ЖК Актуальный Дом: планировки быстро показывают, где реальная полезная площадь.
Перед решением попробуй «примерить» покупку на обычную неделю: дорога, покупки, тишина вечером, парковка, прогулка. Если в этих деталях всё складывается — это обычно лучший знак.
Инфраструктура — это не список на лендинге, а доступность. Быстрый тест: где аптека, продуктовый, пункт выдачи, спорт и прогулка, и сколько времени займёт дорога туда без машины.
Фасады — это первое впечатление, но жить приходится в подъезде и во дворе. Поэтому стоит смотреть на практику: входные группы, освещение, лифты, навигацию и пешеходные маршруты без конфликтов с машинами.
Локацию лучше проверять не по «минутам до метро», а по сценариям: утро, вечер и выходные. Если хотя бы два из трёх маршрутов проходят без стресса, место обычно воспринимается комфортно.
Цены корректнее сравнивать не по «случайным объявлениям», а по набору параметров: окружение, класс, стадия готовности, качество общих зон и логистика. Одинаковая цена за метр иногда означает разные компромиссы.
Если работа или учёба часто в разных концах города, полезно заранее прикинуть альтернативные маршруты и транспорт, когда дороги стоят.
Проверь, где будут инженерные стояки и «мокрые зоны»: это влияет на варианты перепланировки и на удобство без переделок.
Коммерция на первых этажах может быть сильным плюсом (кофе, сервисы, доставка), но важно, чтобы это не превращалось в источник шума и хаоса у входов.
Сильные проекты выигрывают там, где быт не требует постоянных поездок: двор, первые этажи и маршруты складываются в понятную ежедневную логику.
Хорошая локация — это ещё и пешие привычки: где купить продукты, куда выйти пройтись, насколько безопасно и удобно вечером.
